Процесс согласования перепланировки нежилого объекта недвижимости после ее проведения называется узакониванием и осуществляется в уполномоченном органе в зависимости от местонахождения. Если помещение находится в жилом доме в Москве, то оформляется перепланировка в Мосжилинспекции, а если в нежилом здании – то в ТБТИ.
Как узаконить перепланировку нежилого помещения в 2025 году
Стоит отметить, что узаконить и согласовать перепланировку можно только в том случае, если при ее проведении были соблюдены все нормы и правила (правовые, строительные, противопожарные, санитарные и другие). В противном случае нужно либо устранить все нарушения, либо вернуть помещению первоначальный вид.
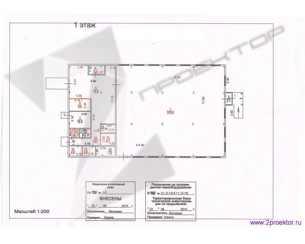
Согласовать перепланировку объекта нежилого фонда после перепланировки можно как еще только планируемую, если изменения конфигурации помещения не выделены в техническом паспорте БТИ красным цветом. В таком случае есть вероятность избежать штрафа за незаконную перепланировку, который для юридических лиц в Москве варьируется от 300 до 350 тысяч рублей.
- Согласование перепланировки квартирыот 60 000 ₽
- Согласование перепланировки нежилого помещенияот 150 000 ₽
- Изготовление проекта перепланировки квартирыот 20 000 ₽
Значит, первое, что надо сделать, это запросить в Бюро технической инвентаризации технический паспорт. Если в нем присутствуют только черные линии, то мы рекомендуем следовать следующей схеме:
- заказать изготовление проектной документации в организации с сертификатом СРО;
- согласовать перепланировку в административных органах;
- подать заявление на перепланировку в Мосжилинспекцию, приложив все необходимые документы, и получить разрешение на осуществление ремонтных работ;
- пройти комиссию МЖИ для подтверждения завершения перепланировки и подписания соответствующего Акта, по истечении некоторого времени;
- пригласить техника БТИ для проведения инвентаризационных работ;
- получить новые документы.
При получении техпаспорта БТИ в красных линиях, вам следует обратиться в проектную организацию для разработки проекта перепланировки и технического заключения о сохранении ранее выполненных ремонтно-строительных работ. Если в процессе ремонта были затронуты капитальные стены, то такое заключение может дать только автор проекта дома или ГБУ «Экспертный центр».
Далее вам необходимо получить Акт о завершенной перепланировке, внести изменения в ГКН и ЕГРН и получить документы, в которых будет отображена настоящая планировка нежилого помещения.
Оформление перепланировки нежилого помещения в Москве
Процесс согласования и узаконивания перепланировок нежилых объектов недвижимости, расположенных в жилых и нежилых зданиях в Москве, довольно длительный и имеет много нюансов. И если вы не знаете всех тонкостей или не располагаете достаточным количеством времени, то вы можете обратиться в организацию с допуском СРО. Таковой является и компания «2ПРОЕКТОР».
Мы являемся компанией «полного цикла» и занимается согласованием перепланировок «под ключ». Причем сроки оформления перепланировок нашими специалистами могут быть сокращены до 2 месяцев, когда время самостоятельного согласования часто достигает 6-12 месяцев.
С каждым клиентом мы заключаем договор, в котором прописываем сроки и стоимость оказываемых услуг. На каждом этапе мы предоставляем отчет, благодаря чему вы всегда будете осведомлены о проделанной работе.
Направить заявку вы можете по электронной почте info@2proektor.ru, а получить бесплатную консультацию по телефону 8 (495) 956 70 30.
